日期:2018-03-21
广州城投润泽科技有限公司就“工惠驿家”示范性试点项目室内装修进行公开询价,有关事项公告如下:
一、 询价项目内容及地点
a) 内容:按设计要求完成“工惠驿家”示范性试点室内装修工程
b) 服务要求: 装修工程最高限价十五万元。详见附件2
c) 服务时间: 收到由采购方发出的中标通知书当天起20天内完成本项目的装修工程,并验收合格。
d) 服务地点: 广州市白云区安发物流园A20栋三楼
二、 参选单位资格要求
a) 参选单位须持中华人民共和国工商行政管理部门颁发装修的企业法人营业执照并通过最近一年的年检,具备室内装修等经营范围,并持有效的税务登记证;
b) 参选单位成立并正式运营3年或以上,具有良好的企业信誉,在过去的经营活动中没有违法或不良信誉记录;
c) 参选单位具备装修类的相关能力和经验;
d) 不接受联合报价。
三、 参选需提供的资料(所有文件须加盖公章)
a) 公司营业执照、组织机构代码证、税务登记证复印件(加盖公章)及公司基本情况介绍等资料。
b) 报价一览表
c) 参选单位以密封的形式提供竞价资料。
d) 实质性要求响应表
四、 评标方法
本项目采取经评审的最低投标价法确定中标候选人。
通过《有效性审查表》(见附件3)后,各投标人按经评审的投标报价由低到高依次排列,排名第一为第一中标候选人。
五、获取竞价采购文件的时间、地点、方式
a) 获取竞价采购文件及报名时间:2018年3月20 日至2018年 3月27日,上午8:30至下午17:00前。
b) 获取竞价采购文件方式:竞价方可以在采购方规定的时间内,登入广州大学城投资经营管理有限公司官方网站:http://www.gzuci.com/获取招标文件或广东建设信息网: http://www.gdcic.net/获取招标文件。
c) 报名方式:报名电话: 020- 31001291(报名需提供公司全称、投标委托人姓名、身份证号码、联系方式等)。
d) 递交竞价采购文件时间:2018年3月27日下午15:00前统一提交竞价采购文件,逾期将不受理。递交时,请配合工作人员做好相关登记工作。
六、采购单位名称,地址和联系方式
a) 采购单位名称:广州城投润泽科技有限公司
b) 采购单位地址:广州市番禺区小谷围街广州大学城明志街1号信息枢纽楼6楼607单位
本竞价采购事项联系人:施明,联系电话:188-7367-7297
附件1:实质性要求响应表
附件2:装修要求
附件3:有效性审查表
附件4:报价一览表
附件5:项目平面设计图和装修设计图
广州城投润泽科技有限公司
2018年 3月19日
为了使贵公司能顺利完成我司的广州“工惠驿家”示范性试点项目的室内装修工作,现将我司的要求明确如下
一、装修工程依据
1.装修设计招标文件、装修要求、装修施工图
2.装修施工规范及标准
1)中华人民共和国相关的法律法规及其广州市地方性行业标准;
2)其他
二、装修范围
1.室内装修
1)招标文件规定的室内区域装修部分,包括天、地、墙、门、隔墙、服务台以及现有的水电部分改建;
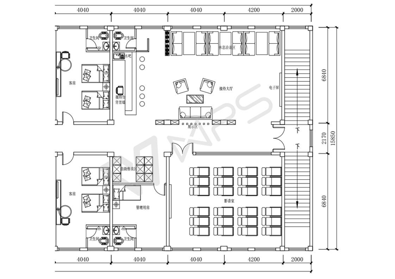
2)工惠驿家室内建筑面积230平方米,其中室内功能应具备:前台接待区,业务洽谈区、产品展示区、文化形象墙、电视墙、培训室、员工休息室等;
3)门头及过道部分:门头招牌、服务指引、过道装饰等。
4)配套材料,包括但不只限于装饰装修材料、照明灯具、五金、其它用品等。
2.代装区域:物业方另有35间客房进行“穿衣戴帽”装饰。
三、装修费用及付款方式
1.室内装修工程和代装区域二项费用总额在15万元,包含完成项目工作所需的全部人工、材料、工具、机具、利润、风险等费用,综合总报价应包含相关措施费用及税费等费用。
2.付款方式:合同签订进场工作并收到请款资料后15个工作日内支付合同金额的30%预付款;工程全部完工验收合格并办理结算手续后支付至合同总价的95%,质保期义务履行完毕且施工方妥善履行了质保期义务后付清余款。
四、装修要求
第1工作阶段:场地前期准备工程
- 土建改造,按照设计要求拆除墙体,按规划打好线槽和底盒孔
- 水电隐蔽工程,强弱电分管分项分槽布好
第2工作阶段:天、地、墙进行装修工程
- 泥工工程
- 木工工程
- 漆工工程
第3工作阶段:设备设施安装工程
- 灯具、开关、五金件的安装
- 家具的安装
- 电视机、空调等电器的配套安装
第4工作阶段:现场验收
清扫场地,运走垃极及余料,清洁现场,进行验收。
广州城投润泽科技有限公司
2018年3月19日
附件
附1:附件1:
★实质性要求响应表
项目名称:“工惠驿家”示范性试点项目
采购内容:室内装修工程
| 序号 | ★实质性招标要求内容 | 投标响应详细 内容 | 正/负/无偏离 | 偏离 说明 | |
| 1 | 工期 | 合同签定之后20天内完工 |
|
|
|
| 2 | 价格 | 全部室内工程装修费用不超过15万元 |
|
|
|
| 3 | 工程 量 |
以发包方提供的图纸为依据,并经过双方的确认
|
|
|
|
说明:
投标人必须将对询价文件中有关“★”号的实质性要求进行响应,响应详细内容填写此表。
备注:1、询价文件中标有“★”的指标均被视为实质性响应指标,投标人如有一项带“★”的指标未响应或不满足,将按无效投标处理。
2、如询价文件上无标有“★”实质性响应指标的,请在表格上填写“无”。
供应商名称(盖公章):
日 期:2018年 月 日
为了使贵公司能顺利完成我司的广州“工惠驿家”示范性试点项目的室内装修工作,现将我司的要求明确如下
一、装修工程依据
1.装修设计招标文件、装修要求、装修施工图
2.装修施工规范及标准
1)中华人民共和国相关的法律法规及其广州市地方性行业标准;
2)其他
二、装修范围
1.室内装修
1)招标文件规定的室内区域装修部分,包括天、地、墙、门、隔墙、服务台以及现有的水电部分改建;
2)工惠驿家室内建筑面积230平方米,其中室内功能应具备:前台接待区,业务洽谈区、产品展示区、文化形象墙、电视墙、培训室、员工休息室等;
3)门头及过道部分:门头招牌、服务指引、过道装饰等。
4)配套材料,包括但不只限于装饰装修材料、照明灯具、五金、其它用品等。
2.代装区域:物业方另有35间客房进行“穿衣戴帽”装饰。
三、装修费用及付款方式
1.室内装修工程和代装区域二项费用总额在15万元,包含完成项目工作所需的全部人工、材料、工具、机具、利润、风险等费用,综合总报价应包含相关措施费用及税费等费用。
2.付款方式:合同签订进场工作并收到请款资料后15个工作日内支付合同金额的30%预付款;工程全部完工验收合格并办理结算手续后支付至合同总价的95%,质保期义务履行完毕且施工方妥善履行了质保期义务后付清余款。
四、装修要求
第1工作阶段:场地前期准备工程
- 土建改造,按照设计要求拆除墙体,按规划打好线槽和底盒孔
- 水电隐蔽工程,强弱电分管分项分槽布好
第2工作阶段:天、地、墙进行装修工程
- 泥工工程
- 木工工程
- 漆工工程
第3工作阶段:设备设施安装工程
- 灯具、开关、五金件的安装
- 家具的安装
- 电视机、空调等电器的配套安装
第4工作阶段:现场验收
清扫场地,运走垃极及余料,清洁现场,进行验收。
广州城投润泽科技有限公司
2018年3月19日
附件3
有效性审查表
项目名称:
| 序号 | 评审内容 | 投标人 |
| 1 | 投标文件未按招标文件的规定密封、盖章和签署; |
|
| 2 | 投标文件未按招标文件规定的格式填写,内容不全或关键字迹模糊、无法辩认; |
|
| 3 | 对同一招标项目出现两个或以上的投标报价,且没声明哪个有效; |
|
| 4 | 投标总报价低于企业自身成本; |
|
| 5 | 工期不满足招标文件要求的; |
|
| 6 | 施工组织设计未响应招标文件中已明确必须要作实质性响应的内容; |
|
| 7 | 投标文件附有招标人不能接受的条件; |
|
| 8 | 不符合招标文件中规定的其他实质性要求。 |
|
|
| 评审结论(通过/不通过) |
|
注:
1.投标人分栏中填写“√”表示该项符合招标文件要求,“×”表示该项不符合招标文件要求,“○”表示无该项内容;
2.经评标委员会审核后,出现一个“×”的结论为“不通过”,即按废标处理。
3.表中全部条件满足为“通过”,同意进入下一阶段评审。
4.如对本表中某种情形的评委意见不一致时,以评标委员会过半数成员的意见作为评标委员会对该情形的认定结论。
评委签名:
日 期: 年 月 日
附件4
报价一览表
| 项目名称 | 数量 | 单价 | 金额 | 备注 |
|
|
|
|
|
|
| 投标总额 | 大写: 小写: | |||
| 投标工期 |
| |||
| 拟委派的项目 负责人 | 姓名 |
| ||
| 技术职称 |
| |||
注:(1)投标总价为人民币报价。
(2)投标总价应包括投标人完成本项目(如果中标)所必须的所有成本费用和投标人应承担的一切税费,包括但不限于全部人工费、材料、工具、机具、税费及相关措施费用等等。
(3)若用小写表示的金额和用大写表示的金额不一致,以大写表示的金额为准。
投标人名称(盖章):
日期: 年 月 日
附件5:装修平面图
