日期:2018-04-09
广州大学城投资经营管理有限公司现就枢纽楼副楼一层热水监察班改造工程进行公开询价,欢迎有意者参与投标竞价。现将有关事项公告如下:
一、 项目概况
1. 项目名称:枢纽楼副楼一层热水监察班改造工程
2. 项目实施地点:信息枢纽楼
3. 项目内容:按采购人提供的询价文件、图纸、工程量清单,承包枢纽楼副楼一层热水监察班改造工程工程项目询价过程中发布的询价文件所包含的全部内容。(具体以询价文件及相关资料为准。)
4. 采购控制价:人民币5.6万元(投标报价超过采购控制价为无效投标)。
二、 投标资格要求
1. 报价单位必须是具有独立承担民事责任能力的在中华人民共和国境内注册,具有独立法人资格。
2. 具备有效的工商营业执照、企业法人组织机构代码证书、税务登记证书(或三证合一)。
3. 报价单位已办理合法税务登记,具有开具相应增值税专用发票能力。
4. 投标人具备建筑机电安装工程专业承包叁级或以上资质。
5. 投标人近3年内(2015年1月1日至今) 完成过质量合格的类似项目业绩(需提供合同和验收报告等相关证明材料复印件)。
6. 本项目不接受联合报价。
三、 询价文件公示
本项目的询价公告及相关信息公示时间:2018年4月10日8时30分至2018年 4月14日15时30分。在广东建设信息网(网址:http://www.gdcic.net/)、广州大学城投资经营管理有限公司网站(网址:https://www.gzuci.com/)上发布,并视为有效送达。本询价文件在其他法定媒体发布的文本如有不同之处,以在广州大学城投资经营管理有限公司网站发布的文本为准。
四、 报名及获取询价文件
1. 报名时间、地点:2018 年4月10日公告之时至2018 年4月14日15时30分(不含节假日);上午8:30至12:00,下午14:00至17:30,地点:广州市番禺区大学城明志街1号信息枢纽楼东大堂(未参加报名的单位递交的投标文件不予接收)。
2. 报名时需递交:①《投标报名表》(见附件一)原件一式一份;②营业执照、税务登记证、组织机构代码证(或三证合一)(复印件盖章);③法定代表人身份证明书原件(格式见附件二);④法定代表人授权委托证明书原件(格式见附件三,法定代表人亲自办理投标事宜的,则无需提交本证明书)。⑤建筑机电安装工程专业承包叁级或以上资质证书(复印件盖章);⑥安全生产许可证(复印件盖章)。
3. 报名成功的单位,可向采购人索取该项目询价文件。
4. 在规定的报名期间,报名的申请单位不足3名时,采购人有权:(1)发布公告延长接受报名及投标文件递交时间。在延期报名时间内,已报名申请单位的资料仍有效并可自行补充资料,未报名的申请单位可根据公告的约定参与报名。(2)按规定重新询价。
五、 递交报价文件截止时间和地点
1. 递交报价文件方式:投标单位以密封的形式提供报价文件,信封的骑缝处须盖章或签字,我司接受现场递交或邮寄两种方式。
2. 递交报价文件截止时间:2018年4月14日下午15:30,所有报价文件必须在此时间前递交到:广州市番禺区大学城明志街1号信息枢纽楼东大堂前台转交大学城投资公司采购合同部,投标文件信封未密封,或未在骑缝处盖章或签字,或逾期送达的投标报价文件我司有权不予受理。
六、 联系方式:
1. 采购单位:广州大学城投资经营管理公司
2. 联系地址:广州市番禺区大学城明志街1号信息枢纽楼东大堂
3. 联系人:詹小姐 电话:020-39302060
广州大学城投资经营管理有限公司
2018年4月9日
附件一、投标报名表
附件二、法定代表人身份证明书
附件三、法定代表人授权委托证明书
附件一:
| 投标报名表 | ||||||||||
| 项目名称:枢纽楼副楼一层热水监察班改造工程 | ||||||||||
| 报名单位名称 | 法人代表 | |||||||||
| 详细地址 | 邮 编 | |||||||||
| 成立日期 | 营业执照号码 | 发证机构 | ||||||||
| 固定电话号码 | 传真号码 | 注册资金 | ||||||||
| 公司类型 | 机构性质 | |||||||||
| 项目联系人 | 联系电话 | |||||||||
| 经营范围 |
| |||||||||
| NO: | 资质证书(认证项目)名称 | 发证机关 | ||||||||
| 1 | ||||||||||
| 2 | ||||||||||
| 3 | ||||||||||
| 主要服务行业 | 主要客户 | |||||||||
| 近三年类似业绩 | ||||||||||
| 服务单位 | 项目内容 | |||||||||
|
报名单位(盖章): | ||||||||||
日期:2018年 月 日
附件二
法定代表人身份证明书
在我单位任职务,是我单位法定代表人,身份证号为,特此证明。(单位盖章)
日期: 20 年 月 日
单位通信地址:
邮政编码: 单位联系电话:
附:法人代表身份证正反面或其他身份证明材料复印件
附件三
法定代表人授权委托证明书
兹授权 (委托代理人姓名)为我方委托代理人,其权限是:办理 (采购单位名称)组织的“ (项目名称)”的投标和合同执行,以我方的名义处理一切与之有关的事宜。
本授权书自 年 月 日签章之日起生效,特此声明。
附:代理人性别: 年龄: 职务:
身份证号码:
(营业执照等)注册号码:
企业类型:
经营范围:
附:被授权人有效身份证正反面或其他身份证明材料复印(单位盖章):
法定代表人(签字或盖章):
被授权人(签字或盖章):
日期: 20 年 月 日
说明:法定代表人亲自办理投标事宜的,无需提交本证明书。
枢纽楼副楼一层热水监察班改造工程
询价文件
一、 项目概况
1. 工程名称:枢纽楼副楼一层热水监察班改造工程
2. 工程地点:信息枢纽楼
3. 采购限价:人民币5.6万元(投标报价超过采购限价为无效投标)。
4. 工程项目简介
我司枢纽楼副楼一层热水监察班要分隔成两间。监察班的电、消防、空调需改造,并增加空调流量计;夹层做热水监察班仓库,需加装楼梯。
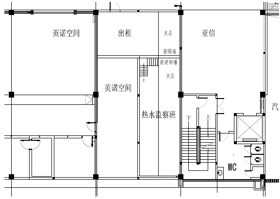
信息枢纽楼副楼一层原分为英诺空间、热水监察班和亚信三个区域。该层空调计量表装在副楼冷冻水总管上,计量范围包含了三个区域。现增加新的租户,变为四个区域。为便于管理和计费,对该层英诺空间、热水监察班、亚信及新租户的空调安装能量表进行分开计量。
二、 投标资格要求
1. 投标人须是中华人民共和国境内注册,具有独立法人资格。
2. 具备有效的工商营业执照、企业法人组织机构代码证书、税务登记证书(或三证合一)。
3. 投标人已办理合法税务登记,具有开具相应增值税专用发票能力;
4. 具备建筑机电安装工程专业承包叁级或以上资质。
5. 投标人近3年内(2015年1月1日至今) 完成过质量合格的类似项目业绩(需提供合同和验收报告等相关证明材料复印件)。
6. 不接受联合体报价。
三、 项目的工作范围及内容:
1、建筑
1)热水监察班分隔为两个房间,一间用于出租,另一间热水监察班使用,分隔墙由租户负责(详见图4)。
2)热水监察班由地面上夹层需要制作安装钢制转角楼梯(详见图4)。规格为1米宽,3米高。
3)夹层不锈钢栏杆在楼梯入口处开口切割,用于从楼梯进入夹层。
2、空调
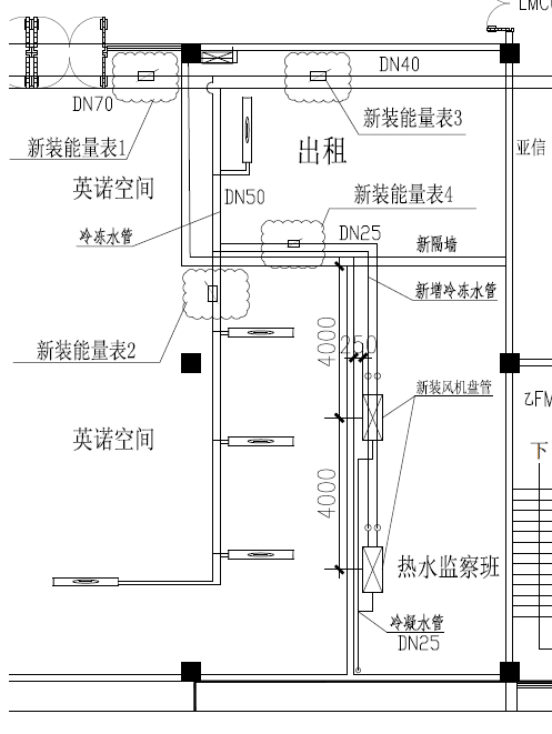
1) 需要增加四套空调计费能量表,见图3,在英诺空间进入新出租房间前DN70冷冻水管处安装能量表1,用于计量新出租、热水监察班、亚信及英诺空间末端各区的用冷量;
在英诺空间末端DN50冷水管道是安装能量表2, 用于计量英诺空间末端的用冷量;
在新出租房间DN40冷水管道是安装能量表3, 用于计量亚信的用冷量;
在热水监察班新增DN25冷水管道上安装一个能量表4,用于计量热水监察班风机盘管的用冷量;
新出租房间的用冷量通过能量表1的用冷量,减去能量表2、3、4的用冷量来计算。
2) 热水监察班需要增加2台风机盘管机组、冷冻水管及冷凝水管等(详见图3、图4)。
3)枢纽楼副楼一层原使用功能分区示意图详见图1,枢纽楼副楼一层新使用功能分区示意图,详见图2。空调系统安装示意图详见图3、图4、图5。
图1 枢纽楼副楼一层原使用功能分区示意图
图2 枢纽楼副楼一层新使用功能分区示意图

图3 热水监察班冷冻水管平面示意图

图4 热水监察班空调平面示意图
图5 热水监察班空调立面示意图

3、电气
1)将电热水器的电源线从原监察班配电箱保护性拆除,安装到新监察班的配电箱中。
2)将原监察班的4套照明灯具保护性拆除,均匀安装到新监察班中。
3)能量表及风机盘管机组的电控安装。
4)增加2个插座。
四、 项目施工要求
1、施工方法及技术要求:按国家和行业相关的标准。
2、施工工艺要求:冷凝水管坡向冷凝水总管,坡度﹥0.003。
3、施工过程中需特别注意的事项:
1)能量表的流量计安装时要注意与水流方向一致,尽量安装在回水管上。
2)风机盘管冷凝水排水管接至冷凝水排水总管。
4、对服务单位资质、技术的特殊要求:无
五、 工程量清单及材料要求说明
主要工程量(包括但不限于):
工程量清单
工程量名称:枢纽楼副楼一楼热水监察班改造工程
| 一、空调 | |||||
| 序号 | 名称 | 规格 | 单位 | 工程量 | 备注(品牌) |
| 1 | 分体式电磁能量表 | DN70 | 套 | 1 | 艾科、柏城、建恒 |
| 2 | 分体式电磁能量表 | DN50 | 套 | 1 | 艾科、柏城、建恒 |
| 3 | 分体式电磁能量表 | DN40 | 套 | 1 | 艾科、柏城、建恒 |
| 4 | 分体式电磁能量表 | DN25 | 套 | 1 | 艾科、柏城、建恒 |
| 5 | 风机盘管机组(右式) | FP-102标准型 | 台 | 2 | 约克、开利、新晃 |
| 6 | 电动二通阀及三速开关 | DN20 | 套 | 2 | 约克、开利、新晃 |
| 7 | 铜闸阀 | DN20 | 个 | 4 | 埃美柯、冠龙、瓦特斯 |
| 8 | 镀锌钢管(含30mm厚保温) | DN25 | m | 30 | 国标(国内知名品牌) |
| 9 | 镀锌钢管(含30mm厚保温) | DN20 | m | 10 | 国标(国内知名品牌) |
| 10 | PVC排水管(含20mm厚保温) | DN25 | m | 8 | 国标(国内知名品牌) |
| 11 | 风机盘管软接管(含保温) | DN20 | 根 | 4 | 国内知名品牌 |
| 12 | 镀锌钢板(含20mm厚保温) | 厚0.75mm | ㎡ | 5 | 国标(国内知名品牌) |
| 13 | 镀锌钢板(含20mm厚保温) | 厚0.5mm | ㎡ | 8 | 国标(国内知名品牌) |
| 14 | 铝合金条型侧送风口 | 600*150 | 个 | 4 | 国内知名品牌 |
| 15 | 铝合金铰式回风百叶 | 1200*350 | 个 | 2 | 国内知名品牌 |
| 16 | 角钢 | 4# | m | 48 | 国标(国内知名品牌) |
| 17 | 辅材(木托、丝杆、螺栓、铜接头、胶带、油漆等) | 项 | 1 | 国内知名品牌 | |
| 二、建筑(钢制楼梯制作安装) | |||||
| 序号 | 名称 | 规格 | 单位 | 工程量 | 备注(品牌) |
| 1 | 夹层不锈钢栏杆入口切割及处理 | 宽约1米 | 项 | 1 | |
| 2 | 镀锌工字钢 | 18# | m | 10 | 国标(国内知名品牌) |
| 3 | 防滑镀锌钢板 | 厚3mm | ㎡ | 8 | 国标(国内知名品牌) |
| 4 | 角铁 | 5# | m | 50 | 国标(国内知名品牌) |
| 5 | 镀锌钢管 | DN40 | m | 50 | 国标(国内知名品牌) |
| 三、电气 | |||||
| 序号 | 名称 | 规格 | 单位 | 工程量 | 备注(品牌) |
| 1 | 配电箱 | 8回路PVC明装空配电箱 | 个 | 1 | 内装4P40A开关及2P30mA开关一个(利旧) |
| 2 | 日光灯具(40W)安装 | 220v,40w | 套 | 4 | 利旧 |
| 3 | 单开单控灯开关 | 250v,10A | 个 | 2 | 采用国内知名品牌 |
| 4 | 插座 | 250v,10A(带二三插孔) | 个 | 2 | 采用国内知名品牌 |
| 5 | 电线 | ZR-BV-6 | 米 | 100 | 采用国内知名品牌 |
| 6 | 电线 | ZR-BV-1.5 | 米 | 600 | 采用国内知名品牌 |
| 7 | 难燃PVC线槽 | 30*15 | 条 | 10 | 采用国内知名品牌 |
| 8 | 难燃PVC线槽 | 20*10 | 条 | 30 | 采用国内知名品牌 |
| 9 | 原热水器电源线移至配电箱 | 项 | 1 | ||
备注: 所有材料乙供,数量供参考,实际安装尺寸以现场量度为准,最终以实际工程量结算;
六、 项目工期、验收标准及质保期限
1、 施工工期
工期为12日历天(含节假日,连续计算),具体开工日期以甲方通知为准。
2、 工程质量要求、验收标准
1) 项目要达到的质量要求:安全、使用方便。
2) 工程验收的参考标准:国家和行业相关的质量验收标准。
3) 工程验收的方式:完工后统一验收。
3、 质保期及质保期内需履行的特殊义务:质保期2年。
七、 工程费用及支付方式
1、 本工程采用综合单价包干,包工、包料、包工期、包质量、包安全、包安全文明施工等完成本项目的全部费用,工作全部完工后由双方进行工程量的核实和验收,以实际工程量进行结算。
2、 本项目的综合单价包含完成项目工作所需的全部人工、材料、工具、机具、利润、风险等费用。综合总报价应包含相关措施费用及税费等费用。
3、 付款方式
合同签订并进场工作并收到乙方请款资料后15个工作日内支付合同价的30%预付款;工程全部完工验收合格并办理结算手续后支付至合同结算总价的95%,质保期义务履行完毕且乙方妥善履行了质保期义务后付清余款。
八、 投标文件
根据我司要求的报价格式,按顺序编制页码,进行密封报价(盖章)。投标文件应包含以下内容:
1、 商务部分(提供复印件,并加盖公章)
(1) 企业工商营业执照、企业法人组织机构代码证书、税务登记证书(或三证合一);
(2) 法定代表人证明书或法定代表人授权委托书;
(3) 资质证书和安全生产许可证;
(4) 本工程拟派项目负责人简历表(包括姓名、部门和职务、所学专业和毕业院校名称及毕业时间、主要资历、经验及承担过的类似项目,获得认证资质证书及复印件);
(5) 近3年内(2015年1月1日至今) 完成过质量合格的类似项目业绩(需提供合同和有业主方盖章确认的验收报告等相关证明材料复印件);
(6) 投标认为有必要的其他资质(包括资质证书和安全生产许可证)等材料复印件。
2、 技术部分(格式自定,加盖公章)
施工方案:施工单位应充分了解现场条件,并针对本项目制定切实可行的施工方案,包括但不限于:
(1) 总体实施方案;
(2) 实施进度计划和工期承诺书;
(3) 确保实施进度的技术和组织措施;
(4) 确保安全文明施工的技术和组织措施;
(5) 投入的机械设备;
(6) 投标人认为其它需要说明的文字。
3、 价格文件(加盖公章)
(1) 报价一览表(格式见附件1)
(2) 报价明细表:采用工程量清单计价,按本询价文件所附工程量清单和乙供主要材料清单报价,并以此作为结算依据,包括但不限于工程量清单和乙供主要材料清单各项目单价及综合总报价。
九、 评标方法
本项目采用经评审的最低投标价法确定中标候选人。
同时通过投标人资格审查(见附件5)和投标文件有效性审查(见附件6)后,各投标人按有效投标报价由低至高的顺序依次排列,排名第一为第一中标候选人。投标人实行信用评价管理,具体见附件7和附件8。
十、 勘踏现场
投标人有必要勘踏现场,充分了解清楚施工现场的环境和要求,以便投标人获取那些须投标人自己负责的有关编制投标文件和签署合同所涉及现场所有的资料。一旦中标,这种考察即被认为其结果已在中标文件中得到充分反映。考察现场的费用由投标人自己承担,如因对现场不了解导致报价的失误,由投标人承担。勘踏现场时间:2018年4月11日15时,集中地点:广州市番禺区大学城明志街1号信息枢纽楼一楼西门。勘踏现场联系人工程部陶工,联系电话:020-39302056。投标人未在规定时间勘踏现场的,采购人不再另行组织,由投标人自行前往勘踏。
十一、 报名及投标
1、报名时间为2018 年4月10日公告之时至2018 年4月14日15时30分,在规定的报名时间内,申请人必须将①《投标报名表》(见附件)原件一式两份;②营业执照、税务登记证、组织机构代码证(或三证合一)(复印件盖章);③法定代表人身份证明书原件(见附件);④法定代表人授权委托证明书原件(见附件,法定代表人亲自办理投标事宜的,则无需提交本证明书);⑤安全生产许可证(复印件盖章)提交或快递至广州市番禺区大学城明志街1号信息枢纽楼东大堂。招标人对未进行报名的投标人的投标报价不予受理。
2、在规定的报名期间,报名的申请单位不足3名时,采购人有权:(1)发布公告延长接受报名及投标文件递交时间。在延期报名时间内,已报名申请单位的资料仍有效并可自行补充资料,未报名的申请单位可根据公告的约定参与报名。(2)按规定重新询价。
3、投标文件递交截止时间和地点:2018年4月14日下午15:30前,投标文件信封未密封,或未在骑缝处盖章或签字,或逾期递交招标人有权不予受理。所有投标文件必须在此时间前递交到:广州市番禺区大学城明志街1号信息枢纽楼东大堂转采购合同部
十二、 本询价文件在广东建设信息网(网址:http://www.gdcic.net/)、广州大学城投资经营管理有限公司网站(网址:https://www.gzuci.com/)同时发布。本询价文件在其他法定媒体发布的文本如有不同之处,以在广州大学城投资经营管理有限公司网站发布的文本为准。
十三、 采购联系方式
采购单位:广州大学城投资经营管理有限公司
联系地址:广州市番禺区大学城明志街1号信息枢纽楼
联系人:詹小姐
联系电话:(020)39302060
传真:(020)39340019
附件1:报价一览表
附件2:投标报名表
附件3:法定代表人身份证明书
附件4:法定代表人授权委托证明书
附件5:投标人资格审查表
附件6:投标文件有效性审查表
附件7:网上公开询价供应商信用评价
附件8:供应商信用指标及评价标准
广州大学城投资经营管理有限公司
2018年4月9日
附件1
报价一览表
项目名称:枢纽楼副楼一层热水监察班改造工程
| 序号 | 项目名称 | 投标价(单位:人民币元) | |
| 1 | 投标总价 | 大写: 小写: | |
| 2 | 投标工期 |
| |
| 3 | 工程质量标准 |
| |
| 4 | 保修期限 |
| |
| 5 | 拟委派的项目 负责人 | 姓 名 |
|
| 技术职称 |
| ||
注:(1)投标总价为人民币报价。
(2)投标总价是所有需我司支付的本次项目采购的金额总数,应包括投标人完成本项目(如果中标)所必须的所有成本费用和投标人应承担的一切税费,包括但不限于全部人工费、材料、工具、机具、税费及相关措施费用等等。
(3)若用小写表示的金额和用大写表示的金额不一致,以大写表示的金额为准。
投标人名称(盖章):
日期:2018年 月 日
附件2
| 投标报名表 | ||||||||||
| 项目名称:枢纽楼副楼一层热水监察班改造工程 | ||||||||||
| 报名单位名称 | 法人代表 | |||||||||
| 详细地址 | 邮 编 | |||||||||
| 成立日期 | 营业执照号码 | 发证机构 | ||||||||
| 固定电话号码 | 传真号码 | 注册资金 | ||||||||
| 公司类型 | 机构性质 | |||||||||
| 项目联系人 | 联系电话 | |||||||||
| 经营范围 |
| |||||||||
| NO: | 资质证书(认证项目)名称 | 发证机关 | ||||||||
| 1 | ||||||||||
| 2 | ||||||||||
| 3 | ||||||||||
| 主要服务行业 | 主要客户 | |||||||||
| 近三年类似业绩 | ||||||||||
| 服务单位 | 项目内容 | |||||||||
|
报名单位(盖章): | ||||||||||
日期:2018年 月 日
附件3
法定代表人身份证明书
在我单位任职务,是我单位法定代表人,身份证号为,特此证明。
(单位盖章)
日期: 20 年 月 日
单位通信地址:
邮政编码: 单位联系电话:
附:法人代表身份证正反面或其他身份证明材料复印件
附件4
法定代表人授权委托证明书
兹授权 (委托代理人姓名)为我方委托代理人,其权限是:办理 (采购单位名称)组织的“ (项目名称)”的投标和合同执行,以我方的名义处理一切与之有关的事宜。
本授权书自 年 月 日签章之日起生效,特此声明。
附:代理人性别: 年龄: 职务:
身份证号码:
(营业执照等)注册号码:
企业类型:
经营范围:
附:被授权人有效身份证正反面或其他身份证明材料复印
(单位盖章):
法定代表人(签字或盖章):
被授权人(签字或盖章):
日期: 20 年 月 日
说明:法定代表人亲自办理投标事宜的,无需提交本证明书。
附件5
投标人资格审查表
项目名称:枢纽楼副楼一层热水监察班改造工程
| 序号 | 评审内容 | 备注 |
| 1 | 具备有效的工商营业执照、企业法人组织机构代码证书、税务登记证书(或三证合一)(复印件盖章) |
|
| 2 | 法定代表人证明书原件或法定代表人授权委托书原件 |
|
| 3 | 具备建筑装修装饰工程专业承包二级资质或以上级别施工总承包资质 |
|
| 4 | 安全生产许可证(复印件盖章) |
|
| 5 | 近3年内(2015年1月1日至今) 完成过质量合格的类似项目业绩(需提供合同和验收报告等相关证明材料复印件) |
|
|
| 评审结论(通过/不通过) |
|
注:
1.投标人分栏中填写“√”表示该项符合招标文件要求,“×”表示该项不符合招标文件要求,“○”表示无该项内容;
2.经评标委员会审核后,出现一个“×”的结论为“不通过”,即按废标处理。
3.表中全部条件满足为“通过”,同意进入下一阶段评审。
4.如对本表中某种情形的评委意见不一致时,以评标委员会过半数成员的意见作为评标委员会对该情形的认定结论。
评委签名:
日 期: 年 月 日
附件6
投标文件有效性审查表
项目名称:枢纽楼副楼一层热水监察班改造工程
| 序号 | 评审内容 | 投标人 |
| 1 | 投标文件未按招标文件的规定密封、盖章和签署; |
|
| 2 | 投标文件未按招标文件规定的格式填写,内容不全或关键字迹模糊、无法辩认; |
|
| 3 | 对同一招标项目出现两个或以上的投标报价,且没声明哪个有效; |
|
| 4 | 投标总报价低于企业自身成本; |
|
| 5 | 投标报价超过采购限价; |
|
| 6 | 工期不满足招标文件要求的; |
|
| 7 | 施工方案或施工组织设计未响应招标文件中已明确必须要作实质性响应的内容; |
|
| 8 | 投标文件附有招标人不能接受的条件; |
|
| 9 | 不符合招标文件中规定的其他实质性要求。 |
|
|
| 评审结论(通过/不通过) |
|
注:
1. 投标人分栏中填写“√”表示该项符合招标文件要求,“×”表示该项不符合招标文件要求,“○”表示无该项内容;
2. 经评标委员会审核后,出现一个“×”的结论为“不通过”,即按废标处理。
3. 表中全部条件满足为“通过”,同意进入下一阶段评审。
4. 如对本表中某种情形的评委意见不一致时,以评标委员会过半数成员的意见作为评标委员会对该情形的认定结论。
评委签名:
日 期: 年 月 日
附件7、
网上公开询价供应商信用评价
1.信用评价,是指公司各部门对参加网上询价采购的供应商的诚信度和履约进行鉴别和打分。
2.供应商信用评价内容
供应商信用综合评价根据《供应商信用指标和评价标准》(附件8)进行评价。信用综合评价内容为评价年度周期内供应商的信用表现,包括良好行为和不良行为两个方面。
3. 评价结果应用
3.1网上询价采购项目可在各评标办法中应用供应商信用评价评标。
3.2采用经评审的最低价中标法评标的,在推荐中标候选人时,应对通过资格和有效性评审的投标人按照评标价进行排序,即:评标价=有效报价×(1-信用系数),信用系数计取方法见附件1,供应商第一次参与投标的,信用系数按0计算。当出现二个或二个以上投标人的评标价的取值相同时,由评委会随机抽取确定。
3.3综合评分法
3.3.1、采用综合评分法评标的,采购项目的评标总分为100分,投标供应商得分由商务评分、技术评分、价格评分组成,其中价格评分中的评标价引用信用系数计算确定,即:评标价=有效报价×(1-信用系数),联合体参与投标的,按联合体企业中最低供应商信用系数认定。
3.3.2、当出现二个或二个以上投标人的总得分相同时,由评委会随机抽取确定。
4. 违约处理
4.1 排序第1位的供应商出现以下情形之一的,将暂停其网上询价资格1个月:
4.1.1、实际提供的有关产品性能指标或技术服务能力或施工质量明显低于报价响应时承诺的;
4.1.2、中标、确定为合同供方/承包人后,无正当理由拒绝履行合同和有关承诺的,或擅自变更、中止(终止)合同的。
4.2供应商出现下列情形之一的,采购人有权暂停其网上询价资格:
4.2.1、一年内供应商在采购项目中累计履约评价为不合格2次的;
4.2.2、供应商提供虚假材料或与其它供应商恶意串通谋取成交的;
4.2.3、发生其他违规或违约情况,造成严重损害的;
4.2.4、其它经采购人认定的。
附件8
供应商信用指标及评价标准
| 项目 | 子项 | 评价标准 |
| 良好行为 | 供应商按约定履行合同受到奖励的 | 每发生1次,自认定之日起一年内信用系数加2%, |
| 不良行为 | 供应商提供虚假材料或与其它供应商恶意串通谋取中标、成交的; | 严重不良行为,每发生1次,自认定之日起一年内信用系数扣5% |
| 中标、确定为合同供方/承包人后,无正当理由拒绝履行合同和有关承诺的,或擅自变更、中止(终止)合同的; | ||
| 实际提供的有关产品性能指标和技术服务能力、施工质量明显低于采购响应文件或询价时的承诺的; | ||
| 中标、成交后,将合同转包给其他供应商的; | ||
| 中标、成交后,将合同擅自分包给其他供应商的; | 一般不良行为,每发生1次,自认定之日起一年内信用系数扣2% | |
| 开标后擅自撤回采购相应文件,影响采购活动继续进行的; | 轻微不良行为,每发生1次,自认定之日起一年内信用系数扣1.25% | |
| 供应商因未按约定履行合同受到违约处罚的。 |
备注:
1. 供应商信用系数每个评价年度周期的初评按0计算。
2. 经采购人批准认定的同一供应商良好行为或不良行为,在评价年度周期内信用系数可累加计算。
3. 供应商在一个评价年度周期内未发生任何信用系数扣罚的,在下一个评价年度周期内初评信用系数的基础上奖励加3%,连续两个评价年度周期内未发生任何信用系数扣罚的,在下一个评价年度周期内初评信用系数的基础上奖励加5%,连续三个及以上评价年度周期内未发生任何信用系数扣罚的,在下一个评价年度周期内初评信用系数的基础上奖励加8%。