日期:2018-11-05
我司现就广州大学城4#冷站B2和B3变压器电缆调换零星工程进行公开竞选,有关事项公告如下:
一、 项目名称及竞选内容
(一)项目名称:广州大学城4#冷站B2和B3变压器电缆调换零星工程
(二)采购限价:人民币13万元。
(三)项目内容
按采购人提供的竞选文件、工程量清单和图纸等资料,承包广州大学城4#冷站B2和B3变压器电缆调换零星工程竞选过程中发布的竞选文件所包含的全部内容。(具体以竞选文件及相关资料为准。)
二、 合格投标人资格要求
(一)必须是具有独立承担民事责任能力、在中华人民共和国境内注册的法人;
(二)具备有效的工商营业执照、企业法人组织机构代码证书、税务登记证书(或三证合一);
(三)已办理合法税务登记,具有开具相应增值税专用发票资格;
(四)具有广州市住房和城乡建设委员会颁发的输变电工程专业承包三级及以上(含三级)建筑业企业资质,以及国家能源局南方监管局颁发的承装(修、试)电力设施许可四级(含四级)以上资质,准许从事承装(修、试)电力实施业务;
(五)投标人近3年内(2015年1月1日至今)完成过质量合格的类似项目施工业绩(需提供合同和验收报告等相关证明材料复印件);
(六)不接受联合体报价。
三、 竞选文件公示
本项目的竞选公告及相关信息公示时间:2018年11月05日至2018年11月16日。在广东省招标投标监管网(网址:http://www.gdzbtb.gov.cn/login)、广东建设信息网(网址:http://www.gdcic.net/)、广州大学城投资经营管理有限公司网站(网址:https://www.gzuci.com/)上发布,并视为有效送达。本公告的修改、补充,在广州大学城投资经营管理有限公司网站发布。本竞选公告在各媒体发布的文本如有不同之处,以在广州大学城投资经营管理有限公司网站发布的文本为准。项目相关竞选文件等资料请自行在网站下载(如有)。
四、 报名及获取竞选文件
(一)报名时间、地点:2018年11月05日公告之时至2018年11月16日,工作日北京时间上午9:00至12:00,下午14:00至17:00,地点:广州市番禺区大学城明志街1号信息枢纽楼东大堂(未参加报名的单位递交的投标文件采购人有权不予接收)。
(二)报名时需递交以下资料:
1、《投标报名表》(见附件1)原件;
2、有效的营业执照、税务登记证、组织机构代码证(或三证合一)(复印件盖章);
3、法定代表人身份证明书原件(格式见附件2);
4、法定代表人授权委托证明书原件(格式见附件3,法定代表人亲自办理投标事宜的,则无需提交本证明书)。
(三)获取竞选文件方式:在报名有效期内报名成功的单位,可联系采购人获取该项目竞选文件或自行在网站下载(如有)。
(四)在规定的报名期间,报名的申请单位不足3名时,采购人有权:
1、发布公告延长接受报名及投标文件递交时间。在延期报名时间内,已报名申请单位的资料仍有效并可自行补充资料,未报名的申请单位可根据公告的约定参与报名。
2、按规定重新竞选。
五、 递交投标文件
(一)递交投标文件地点:投标单位以密封的形式提供投标文件到:广州市番禺区大学城明志街1号信息枢纽楼9楼采购合同部,采购人接受现场递交或邮寄两种方式。
(二)投标文件递交截止时间:2018年11月17日北京时间15时00分前。未参加报名的投标人递交的投标文件或投标文件信封未密封,或未在骑缝处盖章或签字,或逾期送达的采购人有权不予受理。
六、 采购人联系方式:
(一)采购单位: 广州大学城投资经营管理有限公司
(二)联系地址:广州市番禺区大学城明志街1号信息枢纽楼9楼,
联系人:廖先生
电话:020-39302079,电子邮件:2229889034@qq.com
附件1:投标报名表
附件2:法定代表人身份证明书
附件3:法定代表人授权委托证明书
采购单位:广州大学城投资经营管理有限公司
2018年11月05日
附件1
| 投标报名表 | |||||||||||
| 项目名称:广州大学城4#冷站B2和B3变压器电缆调换零星工程 | |||||||||||
| 公司名称 |
| 法人代表 |
| ||||||||
| 详细地址 |
| 邮 编 |
| ||||||||
| 成立日期 |
| 营业执照号码 |
| 发证机构 |
| ||||||
| 固定电话号码 |
| 传真号码 |
| 注册资金 |
| ||||||
| 公司所有制 |
| 机构性质 |
| ||||||||
| 项目联系人 |
| 联系电话 |
| ||||||||
| 经营范围 |
| ||||||||||
| 序号 | 资质证书(认证项目)名称 | 发证机关 | |||||||||
| 1 |
|
| |||||||||
| 2 |
|
| |||||||||
| 3 |
|
| |||||||||
|
|
|
| |||||||||
| 主要服务行业 |
| 主要客户 |
| ||||||||
| 近三年类似业绩 | |||||||||||
| 序号 | 服务单位 | 项目内容 | |||||||||
| 1 |
|
| |||||||||
| 2 |
|
| |||||||||
| 3 |
|
| |||||||||
|
|
|
|
|
|
|
|
|
|
| ||
|
报名单位(盖章): | |||||||||||
日期:2018年月日
附件2
法定代表人身份证明书
在我单位任职务,是我单位法定代表人,身份证号为,特此证明。
(单位盖章)
日期:2018年月日
单位通信地址:
邮政编码: 单位联系电话:
附:法人代表身份证正反面或其他身份证明材料复印件
附件3
法定代表人授权委托证明书
兹授权(委托代理人姓名)为我方委托代理人,其权限是:办理 (采购单位名称)组织的“ (项目名称)”的投标和合同执行,以我方的名义处理一切与之有关的事宜。
本授权书自年月日签章之日起生效,特此声明。
附:代理人性别: 年龄: 职务:
身份证号码:
(营业执照等)注册号码:
企业类型:
经营范围:
附:被授权人有效身份证正反面或其他身份证明材料复印
(单位盖章):
法定代表人(签字或盖章):
被授权人(签字或盖章):
日期: 20 年月日
说明:法定代表人亲自办理投标事宜的,无需提交本证明书。
广州大学城投资经营管理有限公司
广州大学城4#冷站B2和B3变压器电缆调换零星工程竞选文件
一、 项目基本情况
(一) 项目名称:广州大学城4#冷站B2和B3变压器电缆调换零星工程
(二) 项目地点:广州大学城4#冷站变压器房
(三) 采购限价:人民币13万元(投标报价超过采购限价为无效投标)。
(四) 项目概况
根据我司安全生产需要,为了消除4#冷站变压器电源存在的安全风险点,保证4#冷站的安全、稳定、可持续生产,有必要调整4#冷站高压配电线路,使得互为备用的2台变压器分别接在不同的高压母线上。
二、 合格投标人资格要求
(一) 必须是具有独立承担民事责任能力、在中华人民共和国境内注册的法人;
(二) 具备有效的工商营业执照、企业法人组织机构代码证书、税务登记证书(或三证合一);
(三) 已办理合法税务登记,具有开具相应增值税专用发票资格;
1、广州市住房和城乡建设委员会颁发的输变电工程专业承包三级或以上建筑业企业资质;
2、国家能源局南方监管局颁发的承装(修、试)电力设施许可四级或以上资质,准许从事承装(修、试)电力实施业务。
(五) 投标人近3年内(20 年1月1日至今) 完成过质量合格的类似电缆施工项目施工业绩(需提供合同和验收报告等相关证明材料复印件);
(六) 不接受联合体报价。
三、 项目内容及要求及施工要求:
(一) 项目内容:
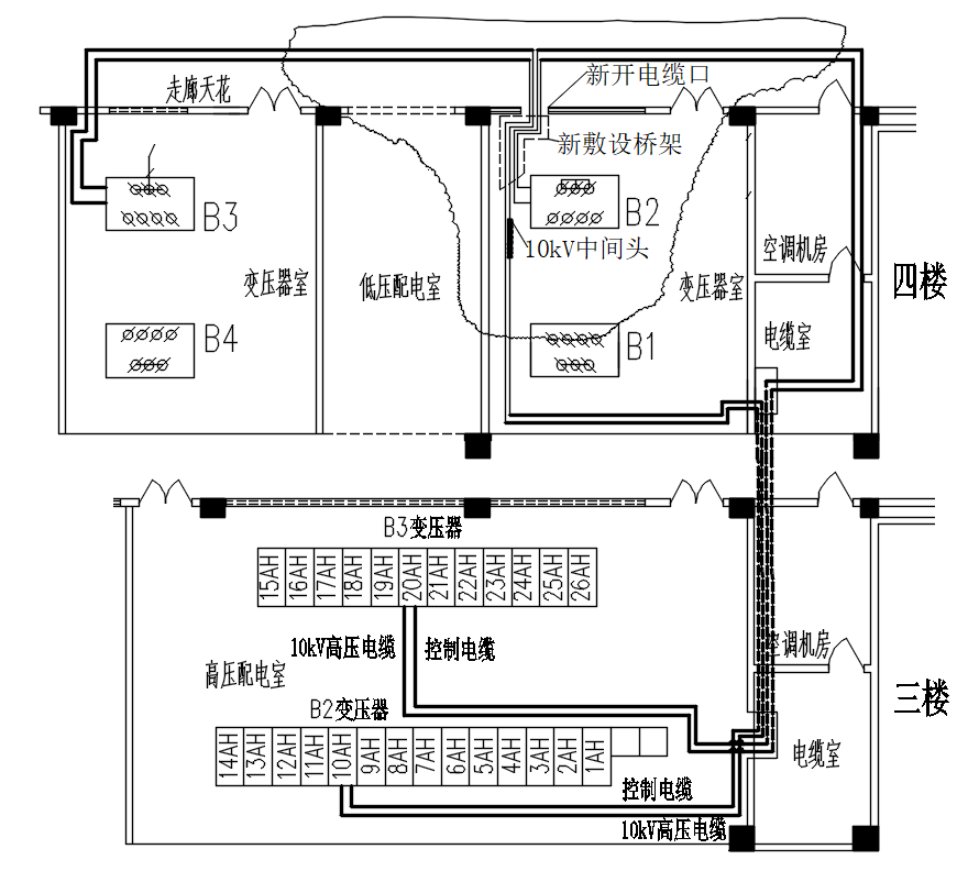
1、 B3变压器电缆迁移至B2变压器主要工作内容
1.1. 保护性拆除B3变压器一次电缆3×150mm2和二次控制电缆45米;
1.2. 保护性拆除或修补4楼走廊天花板18 m2;
1.3. 在B2变压器靠4楼走廊侧开400×200电缆孔1个;
1.4. 新敷设B2变压器至电缆孔铝合金400×200电缆槽盒8m;
1.5. 配套新桥架安装焊接接地干线8m;
1.6. B3变压器一次电缆和二次电缆保护性迁移至B2变压器约12m;
1.7. B2变压器10kV一次电缆终端头制作、核对相序及安装1套;
1.8. B2变压器二次信号电缆头制作并接线1个;
1.9. B2变压器电缆耐压试验1项;
1.10. B2变压器电缆大修后震动波试验1项;
1.11. B2高压开关柜,继保,变压器系统大修后预防性试验1项。
1.12. B2变压器送电后与B1变压器进行核相,保证与原来相序一致。
2、 B2变压器电缆驳接新缆迁至B3变压器主要工作内容
2.1. 新敷设B2到B3变压器一次电缆YJV-10kV-3×150mm2约55米;
2.2. 拆除B2变压器高压侧电缆并与新敷设电缆进行驳接,制作中间头1套;
2.3. B3变压器10kV一次电缆终端头制作、核对相序及安装1套;
2.4. 从10AH柜(原B2变压器高压柜)至B3变压器本体敷设ZR-KVVP-6×2.5mm2二次电缆约85米并制作电缆头及接线;
2.5. B3变压器电缆耐压试验1项;
2.6. B3变压器电缆大修后震动波试验1项;
2.7. B3高压开关柜,继保,变压器系统大修后预防性试验1项。
2.8. B3变压器送电后与B4变压器进行核相,保证与原来相序一致。
(二) 施工要求:
1、 施工方法及技术要求
1.1. 办理我司允许开工的各项手续。
1.2. 考虑到整个迁移调换工程的电缆已经运行了14年之久,电缆承受的拉力衰减,在拆除及敷设时以人力为主,避免因使用绞磨机过度拉力使电缆受损。
1.3. 拆除高、低压电缆头前要对电缆各相进行标识,避免重新接电缆时候出现接线错误或反序。
1.4. 电缆需进行剪切前要见到对应的电缆头方可进行剪切,避免伤及其他变压器电缆。
1.5. 新敷设电缆桥架要安装固定好,必要时现场要定做支架进行支撑,桥架边角要进行打磨,避免毛刺划伤电缆造成损坏。
1.6. 电缆与墙角、柜体摩擦处防护是否良好,否则加小块绝缘垫防护并绑扎好。
1.7. 新开的电缆孔洞四边要用高标号水泥进行抹平,并用做好扇灰工作,与周围环境协调一致,电缆穿洞敷设后要用防火泥进行封堵。
1.8. 电缆调换、拆装后对电缆主绝缘进行测试,并记录绝缘情况,应大于1000MΩ。
1.9. 测量绝缘合格后对电缆进行主绝缘交流耐压试验,试验电压为20Hz~300Hz,2.0U0/5min,应无闪络、击穿现象。泄漏电流稳定,没有随加压时间增长而上升的现象,也没有随试验电压升高而急剧上升的现象,试验完毕电缆绝缘也不应比试验前有所下降,否则,电缆绝缘有缺陷。
1.10. 对电缆进行震荡波试验时候,试验电压要缓慢增加,电缆应该应无闪络、击穿现象。泄漏电流稳定,没有随加压时间增长而上升的现象,也没有随试验电压升高而急剧上升的现象,在缓慢增加试验电压的过程中,如果泄漏电流出现急剧上升的情况,应立即停止试验并分析原因。
2、 对服务单位资质、技术的特殊要求
2.1. 施工单位要在开工前拟定好停电计划、工作进度跟踪表、送电计划、需甲方协调的工作内容,并报甲方单位审批。
四、 工程量及材料说明
以下工程量仅作参考,投标人应根据下表及结合现场实际情况综合考虑再进行报价。
主要工程量清单
| 序号 | 项目名称及说明 | 计量单位 | 工程量 | 备注 |
| 1 | B3变压器电缆迁移至B2变压器 |
|
|
|
| 1.1 | 保护性拆除B3变压器10kV一次电缆3×150mm2 | 米 | 45 |
|
| 1.2 | 保护性拆除B3变压器二次控制电缆 | 米 | 45 |
|
| 1.3 | 保护性拆除或修补4楼走廊天花板 | m2 | 18 |
|
| 1.4 | 在B2变压器靠4楼走廊侧开400×200电缆孔 | 个 | 1 | 乙供料 |
| 1.5 | 新敷设B2变压器至电缆孔铝合金400×200电缆槽盒及配套新桥架安装焊接接地干线 | 米 | 8 | 乙供料 |
| 1.6 | B3变压器一次电缆和二次电缆保护性迁移至B2变压器 | 米 | 12 |
|
| 1.7 | B2变压器10kV一次电缆终端头制作、核对相序及安装(品牌3M) | 套 | 1 | 乙供料 |
| 1.8 | B2变压器二次信号电缆头制作并接线 | 个 | 1 |
|
| 1.9 | B2变压器电缆耐压试验 | 项 | 1 |
|
| 1.10 | B2变压器电缆大修后震动波试验 | 项 | 1 |
|
| 1.11 | B2高压开关柜,继保,变压器系统大修后预防性试验 | 项 | 1 |
|
| 1.12 | B2送电后带电核相,并启动现场电机进行确认转向 | 项 | 1 |
|
| 2 | B2变压器电缆驳接新缆迁至B3变压器 |
|
|
|
| 2.1 | 新敷设B2到B3变压器一次电缆YJV-10kV-3×150mm2 | 米 | 55 | 乙供料 |
| 2.2 | 保护性拆除B2变压器高压侧电缆并与新敷设电缆进行驳接,制作中间头(品牌3M) | 套 | 1 | 乙供料 |
| 2.3 | B3变压器10kV一次电缆终端头制作、核对相序及安装(品牌3M) | 套 | 1 | 乙供料 |
| 2.4 | 从10AH柜至B3变压器本体敷设ZR-KVVP-6×2.5mm2二次控制电缆 | 米 | 85 | 乙供料 |
| 2.5 | B3变压器电缆耐压试验 | 项 | 1 |
|
| 2.6 | B3变压器电缆大修后震动波试验 | 项 | 1 |
|
| 2.7 | B3送电后带电核相,并启动现场电机进行确认转向 | 项 | 1 |
|
| 2.8 | B3高压开关柜,继保,变压器系统大修后预防性试验 | 项 | 1 |
|
备注:1.工程量清单报价时建议按上述表格人工、材料分开单列报价
2.工程中所有材料和辅材消耗、拆迁还建、工器具的使用、施工措施费,车辆运输吊装等由乙方提供。
五、 项目工期、验收标准及质保期限
(一) 施工工期
工期为20日历天(含节假日,连续计算),具体开工日期以甲方通知为准。
(二) 工程验收标准及方式
1、 质量要求:选用材料必须是环保材料及满足国家标准要求。
1.1. 检查电缆应排列整齐,无机械损伤,标志牌应装设齐全、正确、清晰。
1.2. 检查电缆终端头瓷套无破损裂纹及脏污放电现象。
1.3. 检查电缆接线端子连接可靠,无过热及松动现象。
1.4. 检查电缆终端头无断裂、烧损情况。
1.5. 按预防性试验规范要求开展预防性试验,并提供试验合格的预防性试验报告。
1.6. 项目完工后所有电缆送电成功,电缆运行安全、稳定、高效。
2、 验收标准
满足《建筑工程施工质量验收统一标准》(GB500300-2001),《电业安全工作规程》DL408-91,《电力设备预防性试验规程》Q/CSG114002-2011,《电气装置安装工程 高压电气施工及验收规范》GB50147-2010,完工后统一验收。
3、 质保期及质保期内需履行的特殊义务:质保期1年,在电缆保修期内发生本次施工范围内的故障时施工单位要8个小时内组织抢修,24小时内完成检修工作并送电成功。
六、 工程费用及支付方式
(一) 本工程采用综合单价包干,包工、包料、包工期、包质量、包安全生产、包文明施工、包验收、包调试、包结算、包资料整理、包综合治理等完成本项目的全部费用,工作全部完工后由双方进行工程量的核实和验收,以实际工程量进行结算。
(二) 本项目的综合单价包含投标人按施工现场现状及施工范围按采购人要求完成项目工作所需的全部人工、材料、工具、机具、利润、风险等费用。综合总报价应包含相关措施费用及税费等费用、合同实施过程中应预见和不可预见费用等等。
(三) 付款方式
合同付款按施工进度支付,具体为:
1、 形象进度完成30%时,甲方收到乙方请款资料后15个工作日内支付工程款至合同总价的15%。
2、 形象进度完成60%时,甲方收到乙方请款资料后15个工作日内支付工程款至合同总价的40%。
3、 形象进度完成80%时,甲方收到乙方请款资料后15个工作日内支付工程款至合同总价的60%。
4、 项目全部完工并竣工验收合格并按甲方要求完成合同结算手续后,甲方收到乙方请款资料后15个工作日内支付工程款至合同结算总造价的95%。
5、 质保期期满且乙方质保期义务按要求履行完毕后,甲方收到乙方请款资料后15个工作日内付清余款(不计利息)。
6、 每次付款前乙方开具符合国家税务规定的等额合格的增值税专用发票给甲方。
七、 投标文件
根据采购人要求的投标文件格式,进行密封报价(盖章)。投标文件应包含以下内容:
(一) 商务部分(提供复印件,并加盖公章)
1、 有效的企业工商营业执照、企业法人组织机构代码证书、税务登记证书(或三证合一);
2、 法定代表人证明书、法定代表人授权委托书原件(格式见附件);
3、 有效的资质证书和安全生产许可证;
4、 本工程拟派项目负责人简历表(包括姓名、部门和职务、所学专业和毕业院校名称及毕业时间、主要资历、经验及承担过的类似项目,获得认证资质证书及复印件);
5、 近3年内(2015年1月1日至今) 完成过质量合格的类似项目施工业绩(需提供合同和验收报告等相关证明材料复印件);
6、 投标人认为有必要的其他资质等材料复印件。
(二) 技术部分(格式自定,加盖公章)
施工方案:施工单位应充分了解现场条件,并针对本项目制定切实可行的施工方案,包括但不限于:
1、 总体实施方案;
2、 实施进度计划和工期承诺书;
3、 确保实施进度的技术和组织措施;
4、 确保安全文明施工的技术和组织措施;
5、 投入的机械设备;
6、 投标人认为其它需要说明的文字。
(三) 价格文件(加盖公章)
1、 报价一览表(格式见附件1)
2、 报价明细表:采用工程量清单计价,按本竞选文件所附工程量清单和乙供主要材料清单报价,并以此作为结算依据,包括但不限于工程量清单和乙供主要材料清单各项目单价及综合总报价,并注明未含税总价、税率和含税总价。
八、 评标方法
本项目采用经评审的最低投标价法确定中标候选人。同时通过投标人资格审查(见附件4)和投标文件有效性审查(见附件5)后,各投标人按有效投标报价由低至高的顺序依次排列,排名第一为第一中标候选人。投标人实行信用评价管理,具体见附件6和附件7。
九、 勘踏现场
投标人有必要勘踏现场,充分了解清楚施工现场的环境和要求,以便投标人获取那些须投标人自己负责的有关编制投标文件和签署合同所涉及现场所有的资料。一旦中标,这种考察即被认为其结果已在中标文件中得到充分反映。考察现场的费用由投标人自己承担,如因对现场不了解导致报价的失误,由投标人承担。勘踏现场时间:2018年11月8日10时,集中地点:广州市番禺区大学城明志街1号信息枢纽楼一楼西门。勘踏现场联系人生产部刘工,联系电话:020-39302030。投标人未在规定时间勘踏现场的,采购人不再另行组织,由投标人自行前往勘踏。
十、递交投标文件
(一)递交投标文件地点:投标单位以密封的形式提供投标文件到:广州市番禺区大学城明志街1号信息枢纽楼9楼采购合同部,采购人接受现场递交或邮寄两种方式。
(二)投标文件递交截止时间:2018年11月17日北京时间15时00分前。未参加报名的投标人递交的投标文件或投标文件信封未密封,或未在骑缝处盖章或签字,或逾期送达的采购人有权不予受理。
十一、本竞选文件在广东省招标投标监管网(网址:http://www.gdzbtb.gov.cn/)、广东建设信息网(网址:http://www.gdcic.net/)、广州大学城投资经营管理有限公司网站(网址:https://www.gzuci.com/)同时发布。本竞选文件在各媒体发布的文本如有不同之处,以在广州大学城投资经营管理有限公司网站发布的文本为准。
十二、采购人地址和联系方式
采购单位:广州大学城投资经营管理有限公司
联系地址:广州市番禺区大学城明志街1号信息枢纽楼9楼
联系人:廖先生
联系电话:020-39302079
附件1:报价一览表
附件2:法定代表人身份证明书
附件3:法定代表人授权委托证明书
附件4:投标人资格审查表
附件5:投标文件有效性审查表
附件6:公开竞选供应商信用评价
附件7:供应商信用指标及评价标准
附件8:施工图
采购人:广州大学城投资经营管理有限公司
2018年11月05日
附件1
报价一览表
项目名称:广州大学城4#冷站B2和B3变压器电缆调换零星工程
| 序号 | 项目名称 | 投标价(单位:人民币元) | |
| 1 | 投标总价 | 大写: 小写: | |
| 2 | 投标工期 |
| |
| 3 | 工程质量标准 |
| |
| 4 | 保修期限 |
| |
| 5 | 拟委派的项目 负责人 | 姓名 |
|
| 技术职称 |
| ||
注:(1)投标总价为人民币报价。
(2)投标总价是所有需采购人支付的本次项目采购的金额总数,应包括竞选文件要求的全部内容,投标人完成本项目(如果中标)所必须的所有成本费用和投标人应承担的一切税费,包括但不限于全部人工费、材料、设备、工具、机具、安装运输、规费、措施费、合理利润、管理费、税费等及清理现场的费用、合同实施过程中应预见和不可预见费用等等。
(3)若用小写表示的金额和用大写表示的金额不一致,以大写表示的金额为准。
投标人名称(盖章):
日期:年月日
附件2
法定代表人身份证明书
在我单位任职务,是我单位法定代表人,身份证号为,特此证明。
(单位盖章)
日期:2018年月日
单位通信地址:
邮政编码: 单位联系电话:
附:法人代表身份证正反面或其他身份证明材料复印件
附件3
法定代表人授权委托证明书
兹授权(委托代理人姓名)为我方委托代理人,其权限是:办理 (采购单位名称)组织的“ (项目名称)”的投标和合同执行,以我方的名义处理一切与之有关的事宜。
本授权书自年月日签章之日起生效,特此声明。
附:代理人性别: 年龄: 职务:
身份证号码:
(营业执照等)注册号码:
企业类型:
经营范围:
附:被授权人有效身份证正反面或其他身份证明材料复印
(单位盖章):
法定代表人(签字或盖章):
被授权人(签字或盖章):
日期: 20 年 月 日
说明:法定代表人亲自办理投标事宜的,无需提交本证明书。
附件4
投标人资格审查表
项目名称:
| 序号 | 评审内容 | 备注 |
| 1 | 具备有效的工商营业执照、企业法人组织机构代码证书、税务登记证书(或三证合一)(复印件盖章) |
|
| 2 | 法定代表人证明书原件或法定代表人授权委托书原件 |
|
| 3 | 同时具有以下资质: 1、广州市住房和城乡建设委员会颁发的输变电工程专业承包三级或以上建筑业企业资质; 2、国家能源局南方监管局颁发的承装(修、试)电力设施许可四级或以上资质,准许从事承装(修、试)电力实施业务(复印件盖章)。 |
|
| 4 | 有效的安全生产许可证(复印件盖章) |
|
| 5 | 近3年内(2015年1月1日至今) 完成过质量合格的类似项目施工业绩(需提供合同和验收报告等相关证明材料复印件) |
|
|
| 评审结论(通过/不通过) |
|
注:
1.投标人分栏中填写“√”表示该项符合竞选文件要求,“×”表示该项不符合竞选文件要求,“○”表示无该项内容;
2.经评标委员会审核后,出现一个“×”的结论为“不通过”,即按废标处理。
3.表中全部条件满足为“通过”,同意进入下一阶段评审。
4.如对本表中某种情形的评委意见不一致时,以评标委员会过半数成员的意见作为评标委员会对该情形的认定结论。
评委签名:
日 期: 年 月 日
附件5
投标文件有效性审查表
项目名称:广州大学城4#冷站B2和B3变压器电缆调换零星工程
| 序号 | 评审内容 | 投标人 |
| 1 | 投标文件未按竞选文件的规定密封、盖章和签署; |
|
| 2 | 投标文件未按竞选文件规定的格式填写,内容不全或关键字迹模糊、无法辩认; |
|
| 3 | 对同一竞选项目出现两个或以上的投标报价,且没声明哪个有效; |
|
| 4 | 投标总报价低于企业自身成本; |
|
| 5 | 投标报价超过采购限价; |
|
| 6 | 工期不满足竞选文件要求的; |
|
| 7 | 施工方案或施工组织设计未响应竞选文件中已明确必须要作实质性响应的内容; |
|
| 8 | 投标文件附有采购人不能接受的条件; |
|
| 9 | 不符合竞选文件中规定的其他实质性要求。 |
|
|
| 评审结论(通过/不通过) |
|
注:
5.投标人分栏中填写“√”表示该项符合竞选文件要求,“×”表示该项不符合竞选文件要求,“○”表示无该项内容;
6.经评标委员会审核后,出现一个“×”的结论为“不通过”,即按废标处理。
7.表中全部条件满足为“通过”,同意进入下一阶段评审。
8.如对本表中某种情形的评委意见不一致时,以评标委员会过半数成员的意见作为评标委员会对该情形的认定结论。
评委签名:
日 期: 年 月 日
附件6
公开竞选供应商信用评价
一.、信用评价,是指采购人对参加公开竞选采购的供应商的诚信度和履约进行鉴别和打分。
二.、供应商信用评价内容
供应商信用综合评价根据《供应商信用指标和评价标准》(附件8)进行评价。信用综合评价内容为评价年度周期内供应商的信用表现,包括良好行为和不良行为两个方面。
三、评价结果应用
(一)公开竞选采购项目可在各评标办法中应用供应商信用评价评标。
(二)采用经评审的最低价中标法评标的,在推荐中标候选人时,应对通过资格和有效性评审的投标人按照评标价进行排序,即:评标价=有效报价×(1-信用系数),信用系数计取方法见附件1,供应商第一次参与投标的,信用系数按0计算。当出现二个或二个以上投标人的评标价的取值相同时,由评委会随机抽取确定。
(三)综合评分法
1、采用综合评分法评标的,采购项目的评标总分为100分,投标供应商得分由商务评分、技术评分、价格评分组成,其中价格评分中的评标价引用信用系数计算确定,即:评标价=有效报价×(1-信用系数),联合体参与投标的,按联合体企业中最低供应商信用系数认定。
2、当出现二个或二个以上投标人的总得分相同时,由评委会随机抽取确定。
四、违约处理
(一) 排序第1位的供应商出现以下情形之一的,将暂停其公开竞选资格1个月:
1、实际提供的有关产品性能指标或技术服务能力或施工质量明显低于报价响应时承诺的;
2、中标、确定为合同供方/承包人后,无正当理由拒绝履行合同和有关承诺的,或擅自变更、中止(终止)合同的。
(二)供应商出现下列情形之一的,采购人有权暂停其公开竞选资格:
1、一年内供应商在采购项目中累计履约评价为不合格2次的;
2、供应商提供虚假材料或与其它供应商恶意串通谋取成交的;
3、发生其他违规或违约情况,造成严重损害的;
4、其它经采购人认定的。
附件7
供应商信用指标及评价标准
| 项目 | 子项 | 评价标准 |
| 良好行为 | 供应商按约定履行合同受到奖励的 | 每发生1次,自认定之日起一年内信用系数加2%, |
| 不良行为 | 供应商提供虚假材料或与其它供应商恶意串通谋取中标、成交的; | 严重不良行为,每发生1次,自认定之日起一年内信用系数扣5% |
| 中标、确定为合同供方/承包人后,无正当理由拒绝履行合同和有关承诺的,或擅自变更、中止(终止)合同的; | ||
| 实际提供的有关产品性能指标和技术服务能力、施工质量明显低于采购响应文件或竞选时的承诺的; | ||
| 中标、成交后,将合同转包给其他供应商的; | ||
| 中标、成交后,将合同擅自分包给其他供应商的; | 一般不良行为,每发生1次,自认定之日起一年内信用系数扣2% | |
| 开标后擅自撤回采购相应文件,影响采购活动继续进行的; | 轻微不良行为,每发生1次,自认定之日起一年内信用系数扣1.25% | |
| 供应商因未按约定履行合同受到违约处罚的。 |
备注:
1. 供应商信用系数每个评价年度周期的初评按0计算。
2. 经采购人批准认定的同一供应商良好行为或不良行为,在评价年度周期内信用系数可累加计算。
供应商在一个评价年度周期内未发生任何信用系数扣罚的,在下一个评价年度周期内初评信用系数的基础上奖励加3%,连续两个评价年度周期内未发生任何信用系数扣罚的,在下一个评价年度周期内初评信用系数的基础上奖励加5%,连续三个及以上评价年度周期内未发生任何信用系数扣罚的,在下一个评价年度周期内初评信用系数的基础上奖励加8%。
附件8施工图

附图1:B2、B3变压器电缆调换前走向图
附图2: B2、B3变压器电缆调换后走向图
附图3: 4#冷站B2/B3变压器电缆调换前系统图

附图4: 4#冷站B2/B3变压器电缆调换后系统图